關于開平市水口鎮石龍東路9號地塊龍騰苑住宅小區項目報建圖調整的公示
開平市富和房地產開發有限公司向我局申請開孚市水口鎮石龍東路9號地塊龍騰苑住宅小區項目的建筑設計報建圖調整手續,主要調整內容有:
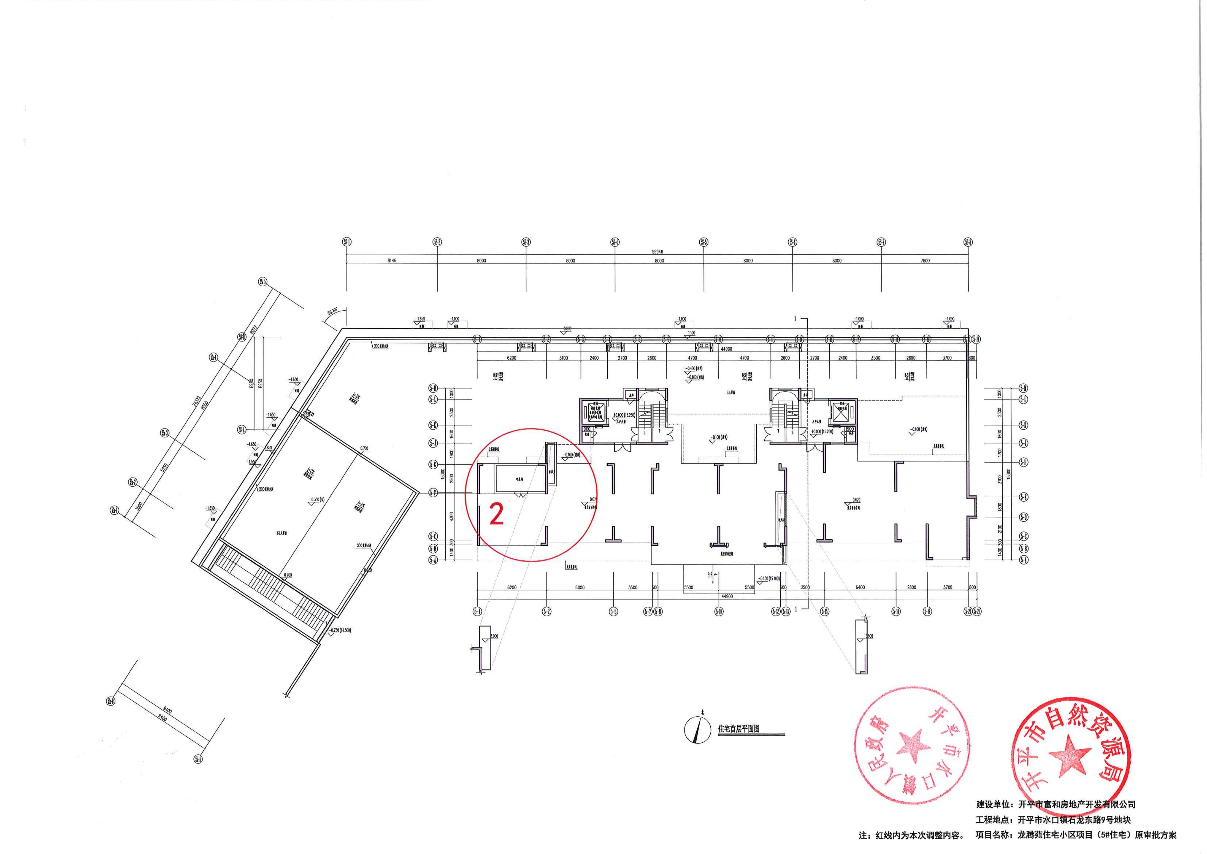
一、1#住宅、5#住宅
1.住宅三層至十七層增加空調板;
2.5#住宅首層電表間取消;
3.建筑立面局部造型優化調整。
二、二期首層商業、停車庫
1.停車庫增加住宅電表間。
以上所提及的各項調整詳見附圖。依照《中華人民共和國城鄉規劃法》有關規定,現將該項目報建圖調整的具體內容予以公示。
受理方式:凡涉及上述規劃調整的利害關系人如有異議,在公示期內憑本人身份證明或利害關系相關證明等文件,向水口鎮規劃建設辦公室或自然資源局提出書面意見,逾期未提出的,視為放棄上述權利。
公示時間:2024年5月17日至2024年5月26日17:30時止。
公示地點:項目現場、開平市自然資源局網站(網址:m.auxus.cn/kpszrzyj/)、開平市水口鎮人民政府網站(網址:m.auxus.cn/skzrmzf/)。
受理單位:開平市水口鎮規劃建設辦公室、開平市自然資源局。
聯系電話:2712810(水口鎮規劃建設辦公室)、2257762(自然資源局)聯系人:鄺先生(水口鎮規劃建設辦公室)、葉先生(自然資源局)。
E-MAIL:shuikoudzd@126.com
(水口鎮規劃建設辦公室)、kpszrzyj@jiangmn.gov.cn(自然資源局)
聯系地址:
開平市水口鎮大福西路38號、開平市新海東路1號,郵編;529300。
開平市自然資源局
開平市水口鎮人民政府
2024年5月17日













相關附件: